Promocje

Zadzwoń: +48 737 393 386
Napisz: biuro@fcdsaczel.pl

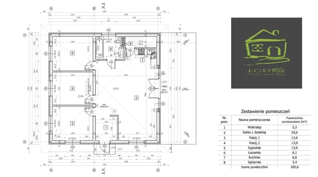
Projekt FCD Energo 001 to dom jednorodzinny o klasycznej bryle, charakteryzujący się prostotą formy, co przekłada się na optymalizację kosztów budowy. Elewacja łączy tradycyjne i nowoczesne elementy, zestawiając jasny tynk z szarymi akcentami i dachówką.

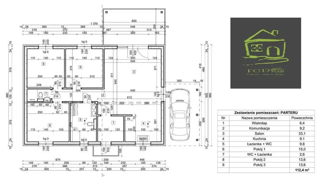
Układ pomieszczeń:

  • Strefa dzienna: Przestronny salon z dużym oknem prowadzącym na taras, idealny na wieczorny relaks. Otwarta kuchnia połączona z jadalnią tworzy przyjazną i przestronną przestrzeń.
  • Strefa nocna: Trzy sypialnie zapewniające komfort mieszkańcom.
  • Dodatkowe pomieszczenia: Łazienka oraz pomieszczenie gospodarcze.

Dane techniczne:

  • Powierzchnia domu: 100,6 m²
  • Technologia budowy: Ściany zewnętrzne dwuwarstwowe z pustaków ceramicznych lub z betonu komórkowego o grubości 24 cm, dla wersji szkieletowej w konstrukcji drewnianej o grubości 15 cm, ocieplone styropianem o grubości 20 cm.
  • Strop: Sufit podwieszany z płyt gipsowo kartonowych.
  • Dach: Dwuspadowy o nachyleniu 25°, więźba drewniana w postaci wiązarów dachowych, pokryty gontem.
  • Ogrzewanie: Kocioł gazowy z możliwością zamiany na pompę ciepła; ogrzewanie podłogowe w salonie, kuchni i łazienkach w pokojach grzejniki.
  • Wentylacja: grawitacyjna z możliwością wykonania rekuperacji.

Dom zaprojektowano z myślą o energooszczędności, z wartością EP (energia pierwotna) poniżej 70 kWh/(m²*rok).

FCD Energo 001 to propozycja dla osób ceniących funkcjonalność, estetykę oraz ekonomiczne rozwiązania w budownictwie.

Dom oferujemy w wersji murowanej jak i szkieletowej. Zapraszamy do zapoznania się z projektem. Napisz, zapoznaj się z ceną realizacji!! Projekt gratis!!

Układ pomieszczeń, wizualizacje i foto z naszych realizacji.

[ngg src=”galleries” ids=”11″ display=”pro_horizontal_filmstrip”]

budowa domów, domy kanadyjskie, domy szkieletowe, Częstochowa, Kraków, Katowice , Śląsk, Małopolska

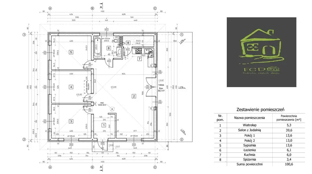
Projekt FCD Energo 001 to dom jednorodzinny o klasycznej bryle, charakteryzujący się prostotą formy, co przekłada się na optymalizację kosztów budowy. Elewacja łączy tradycyjne i nowoczesne elementy, zestawiając jasny tynk z szarymi akcentami i dachówką.

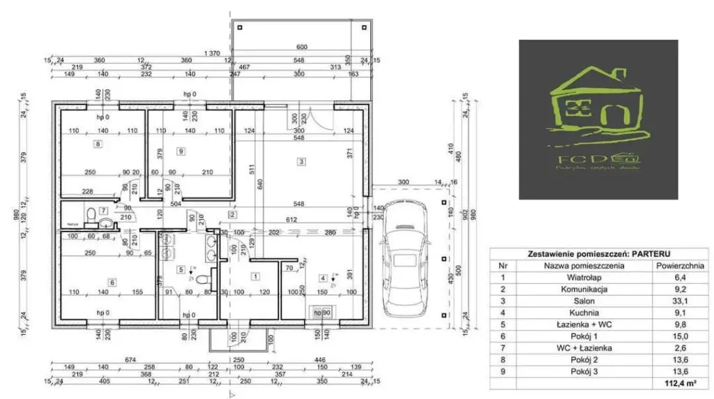
Układ pomieszczeń:

  • Strefa dzienna: Przestronny salon z dużym oknem prowadzącym na taras, idealny na wieczorny relaks. Otwarta kuchnia połączona z jadalnią tworzy przyjazną i przestronną przestrzeń.
  • Strefa nocna: Trzy sypialnie zapewniające komfort mieszkańcom.
  • Dodatkowe pomieszczenia: Łazienka oraz pomieszczenie gospodarcze.

Dane techniczne:

  • Powierzchnia domu: 100,6 m²
  • Technologia budowy: Ściany zewnętrzne dwuwarstwowe z pustaków ceramicznych lub z betonu komórkowego o grubości 24 cm, dla wersji szkieletowej w konstrukcji drewnianej o grubości 15 cm, ocieplone styropianem o grubości 20 cm.
  • Strop: Sufit podwieszany z płyt gipsowo kartonowych.
  • Dach: Dwuspadowy o nachyleniu 25°, więźba drewniana w postaci wiązarów dachowych, pokryty gontem.
  • Ogrzewanie: Kocioł gazowy z możliwością zamiany na pompę ciepła; ogrzewanie podłogowe w salonie, kuchni i łazienkach w pokojach grzejniki.
  • Wentylacja: grawitacyjna z możliwością wykonania rekuperacji.

Dom zaprojektowano z myślą o energooszczędności, z wartością EP (energia pierwotna) poniżej 70 kWh/(m²*rok).

FCD Energo 001 to propozycja dla osób ceniących funkcjonalność, estetykę oraz ekonomiczne rozwiązania w budownictwie.

Dom oferujemy w wersji murowanej jak i szkieletowej. Zapraszamy do zapoznania się z projektem. Napisz, zapoznaj się z ceną realizacji!! Projekt gratis!!

Układ pomieszczeń, wizualizacje i foto z naszych realizacji.

[ngg src=”galleries” ids=”11″ display=”pro_horizontal_filmstrip”]

budowa domów, domy kanadyjskie, domy szkieletowe, Częstochowa, Kraków, Katowice , Śląsk, Małopolska
budowa domów, domy kanadyjskie, domy szkieletowe, Częstochowa, Kraków, Katowice , Śląsk, Małopolska
Z nami osiągniesz swój cel

Buduj z nami

Budujemy domy od 2007 roku. Zaufaj naszemu doświadczeniu.

budowa domów, domy kanadyjskie, domy szkieletowe, Częstochowa, Kraków, Katowice , Śląsk, Małopolska